Veranstaltungen, Hochzeiten und Tagungen
Die Stadthalle liegt im Zentrum der Schöfferstadt.
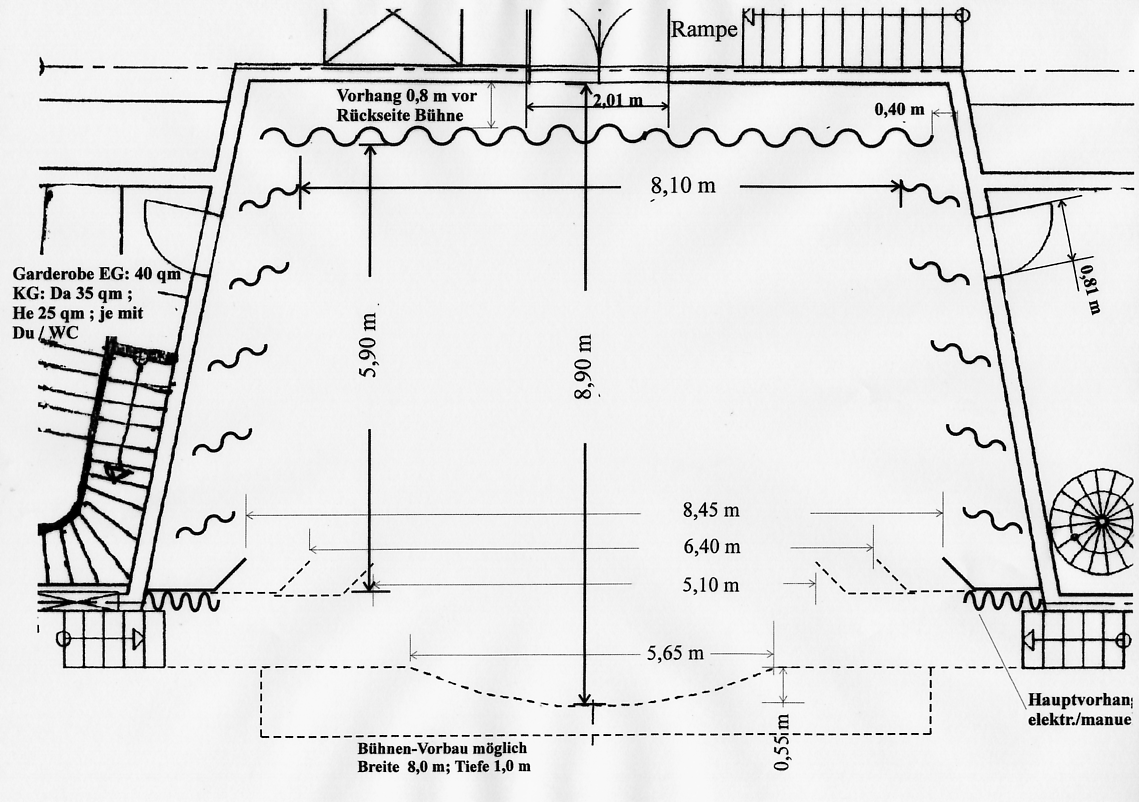
Das Gebäude umfasst einen großen Saal (360 m²) mit Galerie und großer Bühne (99 m²), ein Foyer mit Ausschankbereich und zwei Tagungsräume im Obergeschoss, die auch flexibel zu einem größeren Raum verbunden werden können (116 m²). Alle Veranstaltungsräume verfügen über einen WLAN-Zugang. Außerdem ist ein Restaurant mit Zugang zum Foyer angeschlossen. Der Saal bietet Platz für 565 Besucher - wobei 380 Personen im Parkett Platz finden.
In den vorhandenen Räumen werden verschiedenste Veranstaltungen von Galaabenden, Konzerten, Theateraufführungen, Comedy, Fastnachtssitzungen, private Anlässe und vieles mehr durchgeführt.
Die Nutzung wird über unterschiedliche Ansprechpartner geregelt.
Wenn Sie eine private Veranstaltung planen, wenden Sie sich bitte ausschließlich an das angrenzende Restaurant in der Stadthalle. Mit einer Anmietung durch Privatpersonen ist die Bewirtung durch das Restaurant verbunden.
Eine Bewirtung durch Caterer oder selbst zubereitete Speisen ist nicht möglich.
Gewerbetreibende, Schulen, Religionsgemeinschaften, Vereine und Verbände sowie Behörden können ihre Anfragen an die Stadtverwaltung richten.
Unten finden Sie die Benutzungsordnung sowie die Gebührenordnung.

Stadthalle Gernsheim
Georg Schäfer Platz 1
64579 Gernsheim
